La Cuisine
Description du projet
Ancienne ferme située en Avesnois, à la lisière de la forêt de Mormal. Ce complexe agricole est composé de trois bâtiments disposés autour d’une cour et la ruine d’une ancienne laverie. À l’ouest, donnant sur la rue, se trouve un premier corps bâti en cours de réhabilitation et à usage d’habitation. À l’est, se déploie une série d’extensions anciennement à usage agricole, au plus petit gabarit et en mauvais état général (briques de terre cuite et pierre bleue du Hainault). La mission de Zerm consiste en la réhabilitation de cette partie de l’édifice en une cuisine à vivre.
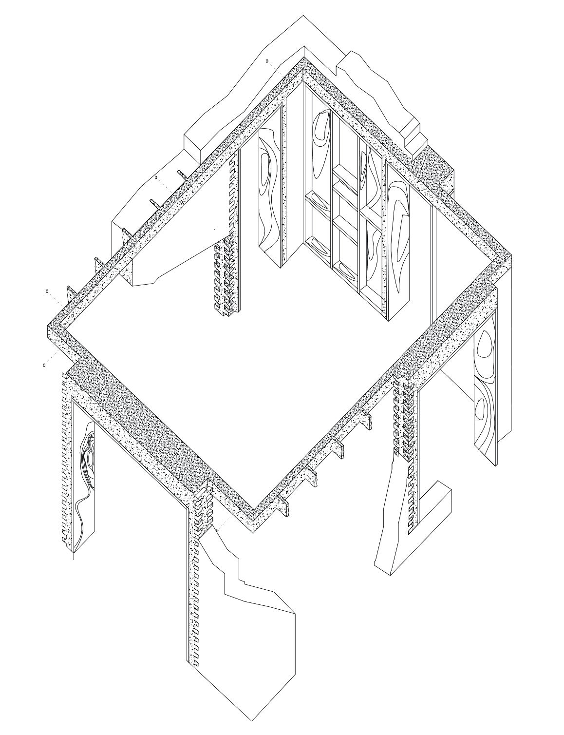
Zerm mène un relevé complet : des mesures nécessaires au dessin de l’existant, à l’inventaire des pierres de soutènement et des pathologies affectant la construction. Ce qui peut être préservé fait l’objet d’une restauration. Les éléments qui présentent des désordres trop importants pour être confortés sont déconstruits. Ainsi, le remplacement de la charpente et du mur sud est nécessaire. A cela s’ajoute le besoin de mettre à niveau l’ensemble des extensions (crémerie, étable, écurie) et le souhait d’ouvrir généreusement vers le paysage forestier et les pâtures.
Pour cela, une dalle de terrazzo est envisagée. Sa réalisation s’appuie sur la déconstruction nécessaire d’ouvrages de maçonnerie et le percement préalables de certains murs. Les gravats de briques, pierres et marbres entrent ainsi dans la composition de la dalle. Par ailleurs, la reconstruction du mur sud est l’occasion de profiter des apports solaires. Une ossature en portiques bois ajourés permet au bâtiment de stocker dans sa masse (murs et dalle) la chaleur du soleil.
Images








